有限会社 トオルプランニング

城南町碇売家 [No.193]  NEW おすすめ


物件名 城南町碇売家
所在地 熊本市城南町碇201-3
価 格 2,060万円
交 通 ひばりヶ丘バス停まで徒歩20分
土地面積 209.00㎡(63.22坪)
構 造 木造瓦葺2階建
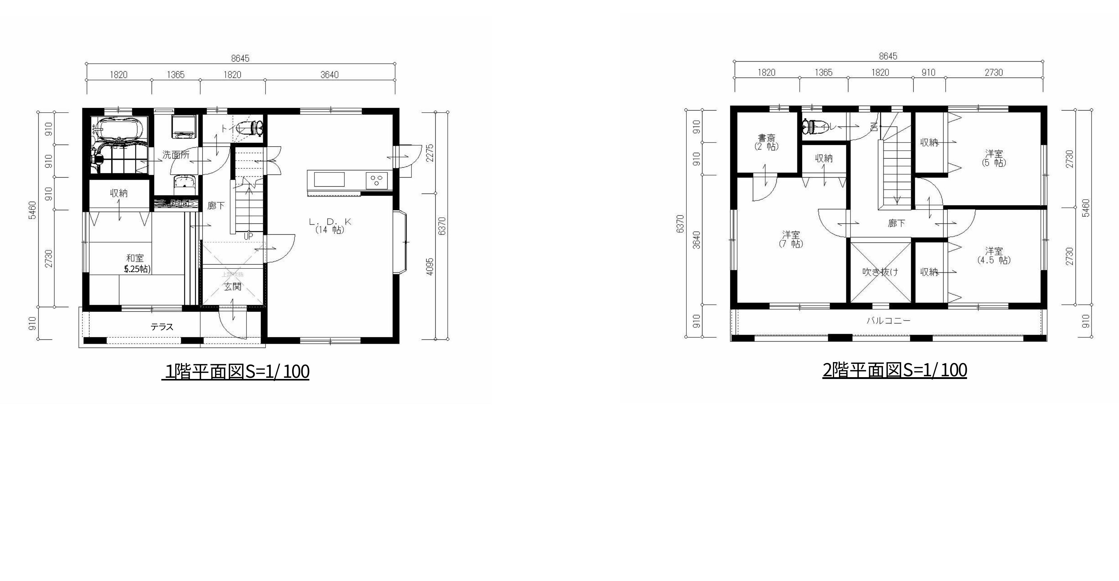
面 積 1階50.51㎡ 2階43.88㎡ 合計94.39㎡(28.55坪)
間 取 4SLDK
築年数 平成22年9月22日
駐車場 5台~6台可
土地権利 所有権
都市計画 調整区域
地 目 宅地
用途地域 無指定
建ぺい率 40%
容積率 80%
校区 小学校 杉上小
校区 中学校 城南中
設 備 プロパンガス、エアコン、追焚機能、モニター付インターフォン
こだわりアイコン 日当たり良好 駐車場

<< 前のページに戻る

おすすめ物件情報

トオルプランニング 有限会社
熊本市南区田井島2丁目4-1
TEL:096-378-0802
(AM9:00~PM6:00 水曜・祝日休み)

池部徹のフェイスブック
トオルプランニングダイレクトメール 勇気は機関車
がんばろうばい熊本
熊本シティーエフエム
不動産情報サイトアットホーム
sumoは住宅・不動産購入や売買をサポートするサイトです