有限会社 トオルプランニング

城南町貸家3 [No.192]  NEW おすすめ


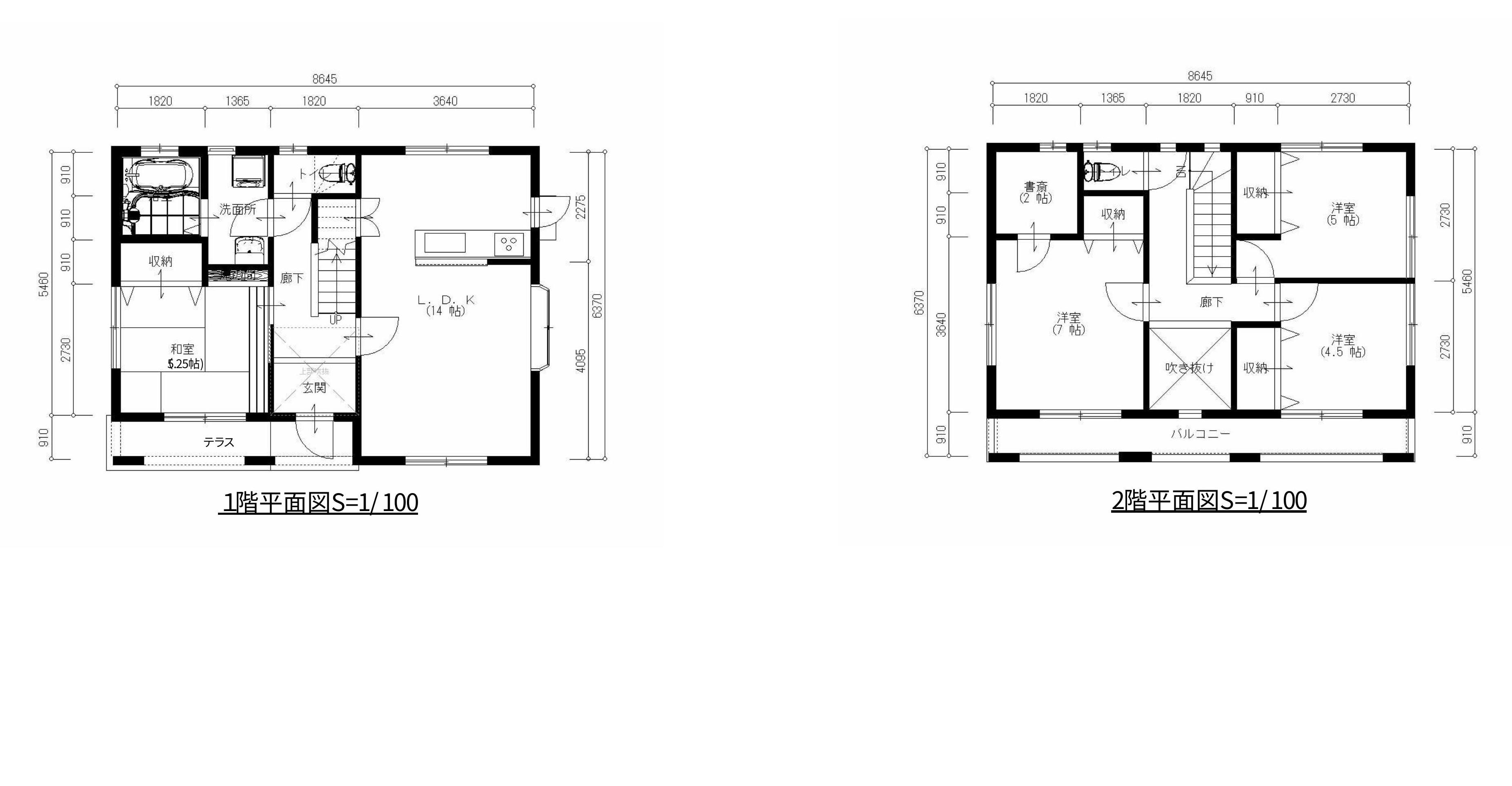
物件名 城南町貸家3
所在地 熊本市南区城南町碇201-3
間 取 4LDK
賃 料 95,000円
敷 金 1ヶ月
礼 金 1ヶ月
構 造 木造2階建
契約期間 2年
管理費等 無し
駐車場 5台可
現 況 空室
引渡し 相談
校区 小学校 杉上小
校区 中学校 城南中
保 険 ※火災保険保険(2年16,000円)住居以外は23,000円
備 品 エアコン、ウォシュレット、追い焚き、プロパンガス
備 考 日当たり良好!事務所相談可
こだわりアイコン 日当たり良好 駐車場

<< 前のページに戻る

おすすめ物件情報

トオルプランニング 有限会社
熊本市南区田井島2丁目4-1
TEL:096-378-0802
(AM9:00~PM6:00 水曜・祝日休み)

池部徹のフェイスブック
トオルプランニングダイレクトメール 勇気は機関車
がんばろうばい熊本
熊本シティーエフエム
不動産情報サイトアットホーム
sumoは住宅・不動産購入や売買をサポートするサイトです